Lot #2849
- Property type: Manufactured Home
- Offer type: For Sale
- Street: 901 65.30 ROAD LOT #2849
- City: Montrose
- State: CO
- Zip Code: 81401
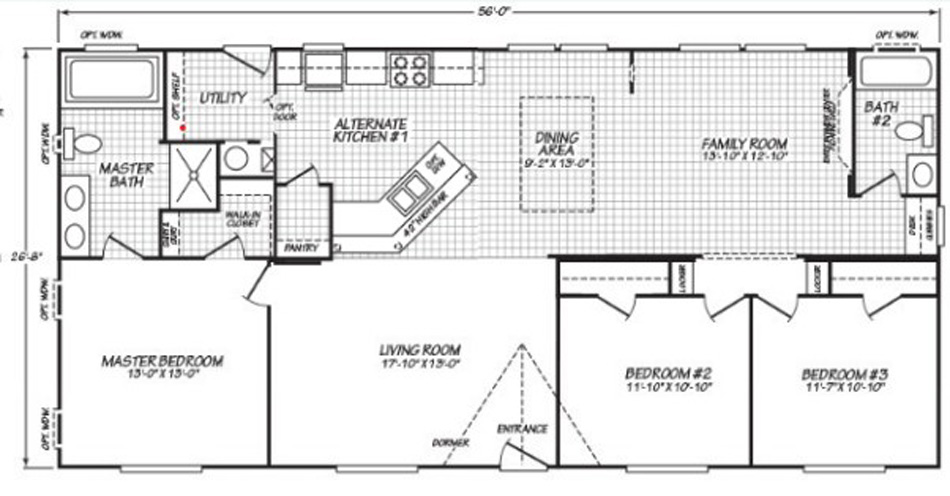
- Bedrooms: 3
- Bathrooms: 2
- Home size: 1568 ft²
- Manufacturer: FLEETWOOD HOME
Features
- ENERGY-EFFICIENT CONSTRUCTION
- GENEROUS KITCHEN COUNTER SPACE
- LARGE FAMILY ROOM
- MODERN CABINETRY
- WALK-IN CLOSET
Details
BRAND NEW FLEETWOOD HOME
Step into comfort, style, and smart design with this brand new, move-in ready, 3-bedroom, 2-bathroom Fleetwood home nestled in the heart of Cimarron Creek Manufactured Home Community. Spanning 1,568 square feet, this thoughtfully crafted residence blends modern convenience with cozy charm.
Step into comfort, style, and smart design with this brand new, move-in ready, 3-bedroom, 2-bathroom Fleetwood home nestled in the heart of Cimarron Creek Manufactured Home Community. Spanning 1,568 square feet, this thoughtfully crafted residence blends modern convenience with cozy charm.
Home Highlights:
• Energy-Efficient Construction for year-round comfort and savings
• Generous Kitchen featuring expansive counter space and sleek modern cabinetry
• Spacious Master Suite with a private en-suite bath and walk-in closet
• Large Family Room perfect for entertaining or relaxing
• Smart Layout that maximizes flow and functionality for everyday living
Whether you’re downsizing, relocating, or simply seeking a fresh start, Lot #2849 offers the perfect blend of practicality and style in a welcoming community setting.
Cimarron Creek offers scenic surroundings, friendly neighbors, and easy access to local amenities. Come see why life here feels just right.