Lot #1409
- Property type: Manufactured Home
- Offer type: For Sale
- Street: 901 65.30 ROAD LOT #1409
- City: Montrose
- State: CO
- Zip Code: 81401
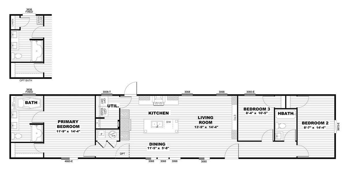
- Bedrooms: 3
- Bathrooms: 2
- Home size: 1140 ft²
- Manufacturer: Clayton Resolution (X)
Features
- Built-in Entertainment Center
- Deluxe Master Bath
- Multifunctional Kitchen Island
- Open Concept Floor Plan
- Stainless Steel Appliances
Details
Stylish 1,140 sq. ft. home with 3 bedrooms and 2 bathrooms, designed for modern convenience. It features an open floor plan, multifunctional kitchen island, and split bedrooms for added privacy. It offers everything you need and more including stainless steel appliances, a farmhouse sink, walk-in pantry, utility room, a deluxe master bath (complete with separate recliner tub/shower and double sinks), built-in entertainment center, and EVEN MORE! Great choice for those looking for both comfort and style.